前田セントラルビル 新富町の賃貸事務所
※事業用物件は 賃料・共益費・管理費等が税込表記です
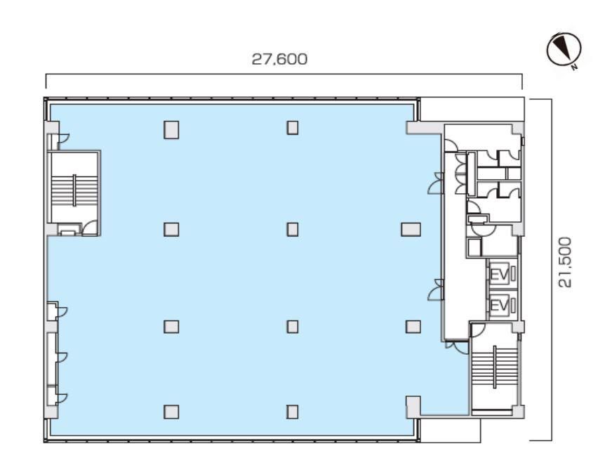
【前田セントラルビルについてスタッフからのイチオシポイント!】「新富町」駅徒歩4分、他「八丁堀」駅「築地」駅からも徒歩6分と3駅利用可能でアクセス良好なオフィスビルです。基準階143.43坪。水廻りが室外にありますが、1フロア1テナントですので専用でお使いいただけます。
前田セントラルビルは東京都中央区湊3丁目3-2【東京メトロ有楽町線 新富町駅徒歩4分】にある賃貸事務所です。1988年2月築の6階建ての事務所で、物件は6階建ての4階部分です。物件の広さは143.43坪です。 ※物件のもっと詳しい内容や入居時期、諸条件のご相談など、ホームページには掲載が間に合わず載せきれていない情報もございます。 気になることが御座いましたらお気軽にメールにてお問い合わせください。
※各種情報と差異がある場合は現況優先となります
近隣スポット情報
この物件に似た物件をチェック!閲覧した物件の履歴こだわり条件から中央区の物件を探す最近検索した条件一覧
▲ページのTOPへ戻る |
| ||||||||||||||||||||||||||||||||||||||||||||||||||||||||||||||||
![]() |
![]() |
![]() |
