ACN銀座イーストビル 新富町の賃貸事務所
※事業用物件は 賃料・共益費・管理費等が税込表記です
【建物外観】
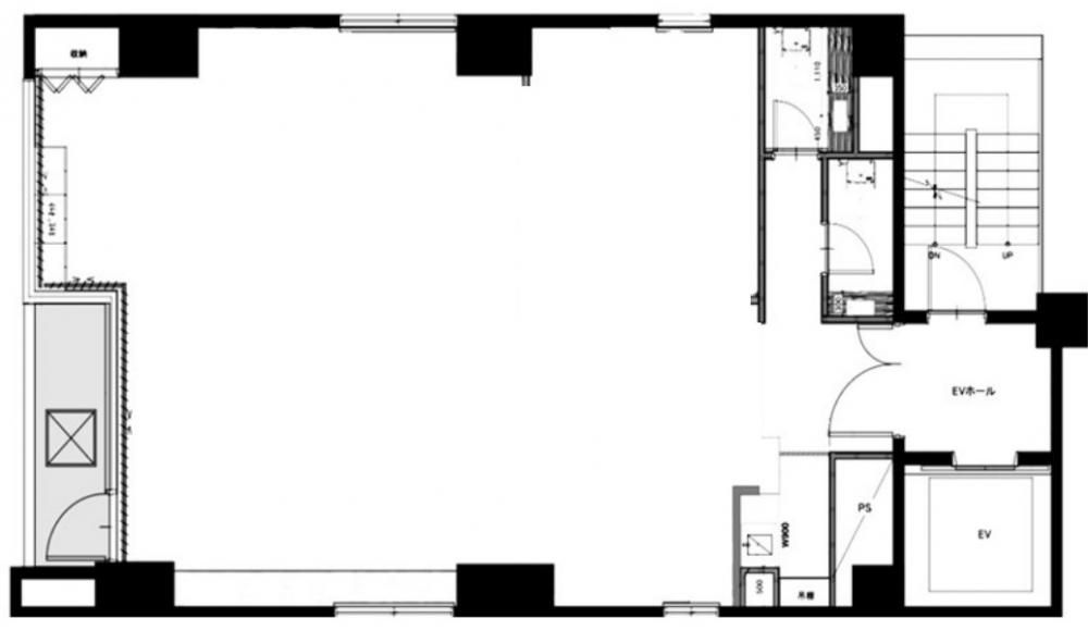
【間取】 9階:23.64坪・78.14u
【地図】
【エントランス】 1階テナント
【エントランス】
【エントランス】 エントランスアプローチ
【エントランス】
【その他共有部分】 エレベーター1基
エントランスアプローチ
前面道路
外観
【ACN銀座イーストビル についてスタッフからのイチオシポイント!】有楽町線「新富町」駅徒歩1分、新大橋通りに面した視認性の高い平成築オフィスビルです。ビルには機械警備が導入されており、セキュリティがしっかりした新耐震基準適合ビルです。「新富町」駅のほか、「築地」駅や「八丁堀」駅も徒歩圏と交通アクセスの良い場所にあります。2022年室内フルリニューアル実施済デザイナーズオフィスです。
ACN銀座イーストビル は東京都中央区新富2丁目14-5【東京メトロ有楽町線 新富町駅徒歩1分】にある賃貸事務所です。1995年3月築の10階建ての事務所で、物件は10階建ての9階部分です。物件の広さは23.64坪です。 ※物件のもっと詳しい内容や入居時期、諸条件のご相談など、ホームページには掲載が間に合わず載せきれていない情報もございます。 気になることが御座いましたらお気軽にメールにてお問い合わせください。
※各種情報と差異がある場合は現況優先となります
近隣スポット情報
この物件に似た物件をチェック!
閲覧した物件の履歴こだわり条件から中央区の物件を探す最近検索した条件一覧
▲ページのTOPへ戻る |
| |||||||||||||||||||||||||||||||||||||||||||||||||||||||||||||||||||||
![]() |
![]() |
![]() |
