茅場町のその他賃貸事務所!|オフィスランディック株式会社
PC
オフィスTOP
住居TOP
売買TOP
売却のご相談
リフォームのご相談
賃貸管理のご相談
会社概要
お問合せ
現在
0
件
マイ条件の活用法
お気に入りの活用法
TOPページ
>
中央区の賃貸情報一覧
>
日宝茅場町ビル 茅場町のその他賃貸事務所!
物件概要
交通機関
東京メトロ日比谷線
茅場町駅
徒歩1分
東京メトロ東西線 茅場町 徒歩1分
住所
東京都中央区日本橋茅場町
種別 / 構造
事務所 / S造(鉄骨造)
築年数
1985年1月
階層
9階
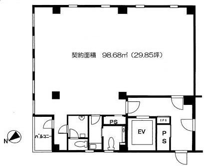
間取り一例
その他
設備・条件
の一例
エレベーター / 2駅利用可 / 2沿線利用可 / 駅まで平坦 / 駅徒歩5分以内 /
こだわり条件から中央区の物件を探す
中央区+賃貸事務所+エレベーター
中央区+賃貸事務所+2駅利用可
中央区+賃貸事務所+2沿線利用可
中央区+賃貸事務所+駅まで平坦
中央区+賃貸事務所+駅徒歩5分以内
中央区+賃貸事務所+タイルカーペット
中央区+賃貸事務所+機械警備
中央区+賃貸事務所+24時間使用可
中央区+賃貸事務所+個別空調
中央区+賃貸事務所+男女別トイレ
中央区+賃貸事務所+新耐震基準
最近検索した条件一覧
オフィスランディック 株式会社
〒103-0025
東京都中央区日本橋茅場町1-11-6 岩崎ビル2F
TEL : 03-6661-1212
お問合わせNO:
KY23030101N
空室情報の確認や詳細を知りたい方
お問合せはお気軽にお問合せください!
▲ページのTOPへ戻る