| |||||||||||||||||||||||||||||||||||||||||||||||||||||||||||||||||
| 賃料 | 相談賃料相場 | 管理費 | 相談 | ||
|---|---|---|---|---|---|
| 敷金 / 礼金 | 相談 / 相談 | 保証金 | 相談 | ||
| 所在階 / 階数 | 4階 / 9階 | 構造 | SRC造(鉄骨鉄筋コンクリート造) | ||
| 用途 / 面積 | 事務所 / 58.09坪 | 築年月 | 1985年12月 | ||
| 交通 |
JR総武線 「浅草橋駅」 徒歩5分 JR総武本線 「馬喰町駅」 徒歩5分 都営浅草線 「浅草橋駅」 徒歩5分 都営浅草線 「東日本橋駅」 徒歩6分 |
||||
| 所在地 | 東京都中央区東日本橋2丁目28-5 |
||||
物件詳細情報 |
| 現況 | 空き予定 | 入居可能日 | 2026年2月下旬 | |
|---|---|---|---|---|
| 取引態様 | 媒介 | 契約態様 | - | |
| 他初期費用 | ||||
設備詳細情報 |
| 設備・条件・その他 | |
||
|---|---|---|---|
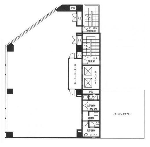
| 備 考 | ■天井高:2,450o OA:50o | ||
物件周辺地図 |















こちらの物件の空室状況 |
賃貸事務所 相談
東日本橋駅 徒歩1分
52.08坪(172.16u)
4路線利用可能な好アクセス。「馬喰横山」「東日本橋」駅徒歩1分の新耐震基準ビルです。
賃貸事務所 539,682円
馬喰町駅 徒歩3分
57.72坪(190.80u)
4駅4路線利用可能、平成23年4月改装改修工事済みの13階建オフィスビルです。
賃貸事務所 ご成約済
東日本橋駅 徒歩2分
65.08坪(215.14u)
都営浅草線「東日本橋」駅徒歩2分、3駅利用でアクセス良好なオフィスビルです。
|
![]() |
![]() |
![]() |
