TWG日本橋イーストU 馬喰横山の賃貸事務所
※事業用物件は 賃料・共益費・管理費等が税込表記です
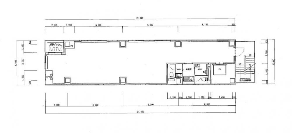
【TWG日本橋イーストUについてスタッフからのイチオシポイント!】「馬喰横山」駅他6駅利用可能でアクセス良好、2021年築、基準階役30坪のオフィスビルです。エレベーター不停止機能付き。
TWG日本橋イーストUは東京都中央区日本橋富沢町10-11【都営新宿線 馬喰横山駅徒歩3分】にある賃貸事務所です。2021年10月築の10階建ての事務所で、物件は10階建ての6階部分です。物件の広さは30.06坪です。 ※物件のもっと詳しい内容や入居時期、諸条件のご相談など、ホームページには掲載が間に合わず載せきれていない情報もございます。 気になることが御座いましたらお気軽にメールにてお問い合わせください。
※各種情報と差異がある場合は現況優先となります
近隣スポット情報
この物件に似た物件をチェック!
閲覧した物件の履歴こだわり条件から中央区の物件を探す最近検索した条件一覧
▲ページのTOPへ戻る |
| ||||||||||||||||||||||||||||||||||||||||||||||||||||||||||||||||
![]() |
![]() |
![]() |
