ACN日本橋PLACE 日本橋の賃貸事務所
※事業用物件は 賃料・共益費・管理費等が税込表記です
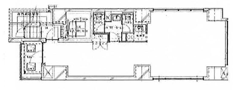
【ACN日本橋PLACEについてスタッフからのイチオシポイント!】2019年4月築基準階約20坪の築浅のコンパクトオフィスビル、ハーフセットアップの物件です。東京駅徒歩12分、日本橋アドレス、1フロア1テナントのオフィスビルです。
ACN日本橋PLACEは東京都中央区日本橋2丁目16-5【東京メトロ銀座線 日本橋駅徒歩2分】にある賃貸事務所です。2019年4月築の10階建ての事務所で、物件は10階建ての9階部分です。物件の広さは19.91坪です。 ※物件のもっと詳しい内容や入居時期、諸条件のご相談など、ホームページには掲載が間に合わず載せきれていない情報もございます。 気になることが御座いましたらお気軽にメールにてお問い合わせください。
※各種情報と差異がある場合は現況優先となります
近隣スポット情報
この物件に似た物件をチェック!
閲覧した物件の履歴こだわり条件から中央区の物件を探す最近検索した条件一覧
▲ページのTOPへ戻る |
| ||||||||||||||||||||||||||||||||||||||||||||||||||||||||||||||||
![]() |
![]() |
![]() |
