柴宗ビル 茅場町の賃貸事務所
※事業用物件は 賃料・共益費・管理費等が税込表記です
【柴宗ビル についてスタッフからのイチオシポイント!】こちらの物件は成約済みの物件です
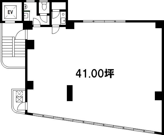
柴宗ビル は東京都中央区日本橋茅場町2-16-4【東京メトロ東西線 茅場町駅徒歩1分】にある賃貸事務所です。1987年4月築の7階建ての事務所で、物件は7階建ての4階部分です。物件の広さは41坪です。 ※物件のもっと詳しい内容や入居時期、諸条件のご相談など、ホームページには掲載が間に合わず載せきれていない情報もございます。 気になることが御座いましたらお気軽にメールにてお問い合わせください。
※各種情報と差異がある場合は現況優先となります
近隣スポット情報
この物件に似た物件をチェック!
閲覧した物件の履歴こだわり条件から中央区の物件を探す最近検索した条件一覧
▲ページのTOPへ戻る |
| ||||||||||||||||||||||||||||||||||||||||||||||||||||||||||||
![]() |
![]() |
![]() |
