ACN日本橋リバーサイドビル 浜町の賃貸事務所
※事業用物件は 賃料・共益費・管理費等が税込表記です
【建物外観】
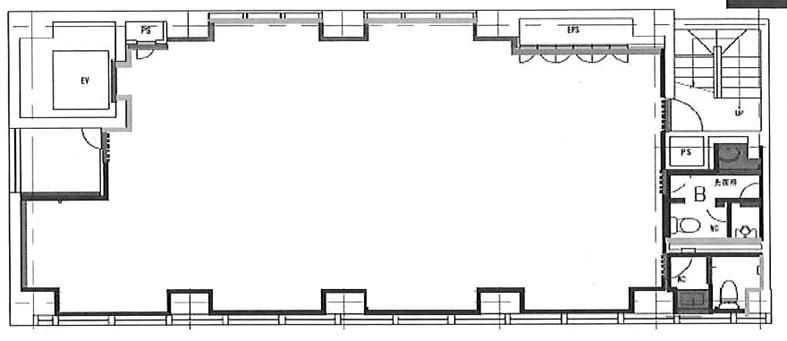
【間取】 2階:34.11坪+会議室2室
【エントランス】
【エントランス】
【建物外観】
【エントランス】
【その他】
【その他共有部分】 1階ラウンジ
【室内】 同ビル内別フロアの室内です。
【室内】 同ビル内別フロアの室内です。
【室内】 同ビル内別フロアの室内です。
【室内】 同ビル内別フロアの室内です。
【その他共有部分】
【トイレ】
【トイレ】
【トイレ】
【トイレ】
【その他設備】
【その他共有部分】 1階ラウンジ
【ACN日本橋リバーサイドビルについてスタッフからのイチオシポイント!】2020年フルリニューアル実施。「浜町」駅徒歩2分の新耐震基準適合ビルです。1階はラウンジ、地下1階・2階は専用会議室となります。1フロア1テナント。水廻りは室内にある為専用でお使い頂けます。
ACN日本橋リバーサイドビルは東京都中央区日本橋浜町3丁目23-1【都営新宿線 浜町駅徒歩2分】にある賃貸事務所です。1992年1月築の地上8階/地下3階建ての事務所で、物件は地上8階/地下3階建ての2階部分です。物件の広さは40.44坪です。 ※物件のもっと詳しい内容や入居時期、諸条件のご相談など、ホームページには掲載が間に合わず載せきれていない情報もございます。 気になることが御座いましたらお気軽にメールにてお問い合わせください。
※各種情報と差異がある場合は現況優先となります
近隣スポット情報
この物件に似た物件をチェック!
閲覧した物件の履歴こだわり条件から中央区の物件を探す最近検索した条件一覧
▲ページのTOPへ戻る |
| |||||||||||||||||||||||||||||||||||||||||||||||||||||||||||||||||||||
![]() |
![]() |
![]() |
