エコー京橋ビル 京橋の賃貸事務所
※事業用物件は 賃料・共益費・管理費等が税込表記です
【エコー京橋ビル についてスタッフからのイチオシポイント!】宝町駅A1出口10mです。昭和通り沿いの角地に立地しています。1階ではコンビニエンスストアが営業中です。
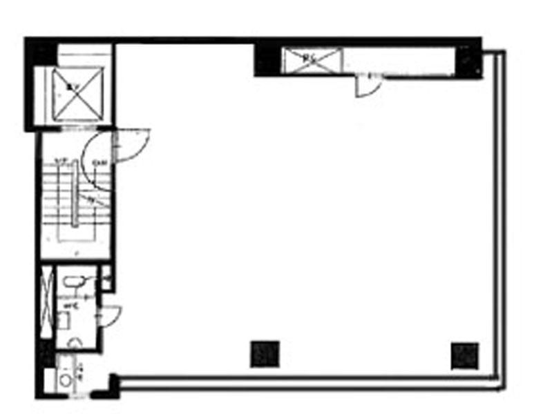
エコー京橋ビル は東京都中央区京橋3丁目12-1【東京メトロ銀座線 京橋駅徒歩3分】にある賃貸事務所です。1975年6月築の10階建ての事務所で、物件は10階建ての2階部分です。物件の広さは37.41坪です。 ※物件のもっと詳しい内容や入居時期、諸条件のご相談など、ホームページには掲載が間に合わず載せきれていない情報もございます。 気になることが御座いましたらお気軽にメールにてお問い合わせください。
※各種情報と差異がある場合は現況優先となります
近隣スポット情報
この物件に似た物件をチェック!
閲覧した物件の履歴こだわり条件から中央区の物件を探す最近検索した条件一覧
| |||||||||||||||||||||||||||||||||||||||||||||||||||||||||||||||
| ▲ページのTOPへ戻る | |||||||||||||||||||||||||||||||||||||||||||||||||||||||||||||||
![]() |
![]() |
![]() |
