| |||||||||||||||||||||||||||||||||||||||||||||||||||||||||||||||
| 賃料(坪単価) | 378,378円(@28,600円) | 管理費(坪単価) | 無(@0円) | ||
|---|---|---|---|---|---|
| 敷金 / 礼金 | - / - | 保証金 / 償却 | 5ヶ月 / 解約時 1ヶ月 | ||
| 所在階 / 階数 | 4階 / 9階 | 構造 | RC造(鉄筋コンクリート造) | ||
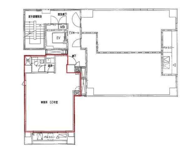
| 用途 / 面積 | 事務所 / 13.23坪 | 築年月 | 2001年8月 | ||
| 交通 |
東京メトロ銀座線 「京橋駅」 徒歩1分 都営浅草線 「宝町駅」 徒歩2分 JR山手線 「東京駅」 徒歩7分 |
||||
| 所在地 | 東京都中央区京橋2丁目5-2 |
||||
物件詳細情報 |
| 現況 | 空家 | 入居可能日 | 即入居可 | |
|---|---|---|---|---|
| 取引態様 | 媒介 | 契約態様 | - | |
| 他初期費用 | ||||
設備詳細情報 |
| 設備・条件・その他 | |
||
|---|---|---|---|
| 備 考 | - | ||
物件周辺地図 |













こちらの物件の空室状況 |
賃貸事務所 457,380円
京橋駅 徒歩3分
19.80坪(65.45u)
京橋エリア20坪前後のビルの中で5本の指に入るおすすめ度です。
賃貸事務所 275,000円
東京駅 徒歩3分
9.07坪(29.98u)
〜「東京」駅・「日本橋」駅が徒歩5分圏、昭和通りの一本裏通りにある角ビル〜
賃貸事務所 ご成約済
宝町駅 徒歩1分
17.65坪(58.34u)
浅草線「宝町」駅徒歩1分、昭和通り沿いのビルです。
賃貸事務所 ご成約済
宝町駅 徒歩4分
8.29坪(27.40u)
★成約済★ 本ビルの空室情報をご希望の方は、お気軽にご連絡下さい!
賃貸事務所 ご成約済
東京駅 徒歩2分
15.98坪(52.82u)
JR線「東京」駅徒歩2分、リニューアル済のオフィスです。
|
![]() |
![]() |
![]() |
